HOME
売りたい方
不動産情報
売買物件一覧
賃貸物件一覧
会社案内
お問い合せ
MENU
HOME
売りたい方
不動産情報
売買物件一覧
賃貸物件一覧
会社案内
お問い合せ
閉じる
FOR SALE
新築住宅
水俣市浜町2丁目
価格
2,899
万円
最寄り交通機関
水俣郵便局前バス停徒歩3分
所在地
水俣市浜町2丁目
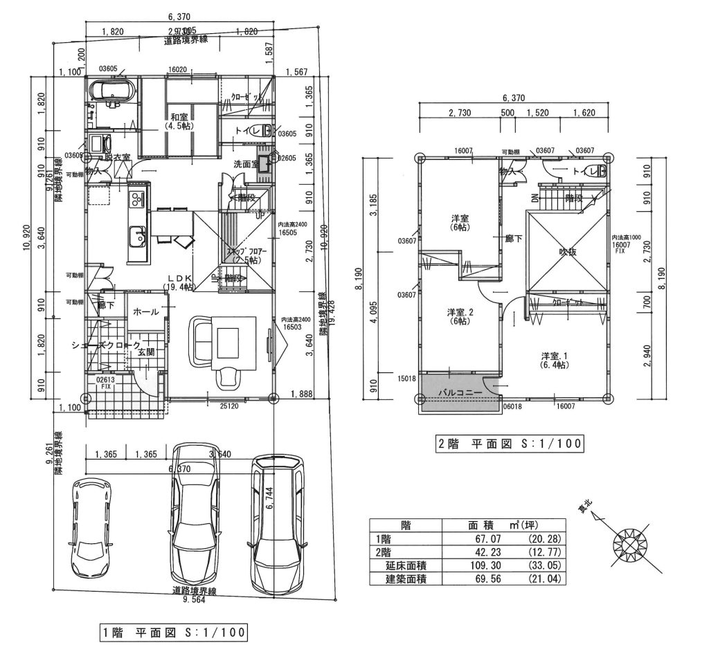
土地面積
175.95m
2
(53.22坪)
建物面積
109.3m
2
(33.06坪)
間取り
4LDK
構造/階数
木造2階建
築年月
2025年8月
学校区
水俣第二小学校区
接面道路
南側6m公道
引き渡し
取引態様
仲介
備考・コメント
-